Rituels d'eau
Refuges de ville
- PFE
En bref
Auteur
Marie Ardilouze
Sous la direction de
Lieu
Séville (Espagne)
Cursus pédagogiques
Présentation
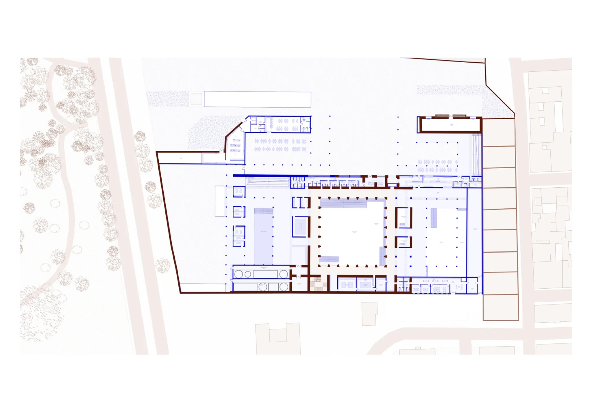
Rituel d’eau, refuge de ville est un projet de bains publics implanté à Séville, dans le quartier de San Jerónimo. Face aux contrastes forts de la ville - entre tourisme prospère, pauvreté des habitants et précarité accrue par le dérèglement climatique - j'ai imaginé un équipement qui répond aux besoins d’hygiène, de confort et de fraîcheur des habitants, tout en recréant du lien social. Le site choisi, un ancien monastère gothique en partie abandonné, symbolise cette ville fragmentée. Le projet s'inspire des traditions sévillanes : thermes romains, hammams mauresques, patios et corral de vecinos, pour proposer un lieu ouvert à tous, mêlant bains, médiathèque, logements, espaces de restauration et d'activités. L’aménagement révèle le patrimoine tout en introduisant de nouvelles fonctions : parcours thermiques, espaces publics minéraux, jardins, bassin de phyto-épuration alimenté par le canal, toitures techniques et espaces de repos. Ce projet s’inscrit comme un premier maillon d’un réseau d’établissements urbains favorisant le droit à l’eau, la mixité et la reconnexion des quartiers.
Image /
Galerie d’images en plein écran
Utilisez les flèches gauche et droite pour naviguer entre les images. Appuyez sur Échap pour fermer la galerie d’images en plein écran.
Image sur : "