Architecture et mémoire populaire sévillane
Du cortijo andalou aux marges urbaines
- PFE
En bref
Auteur
Angelina Laffargue & Elisa Baudet
Sous la direction de
Lieu
Séville (Espagne)
Cursus pédagogiques
Présentation
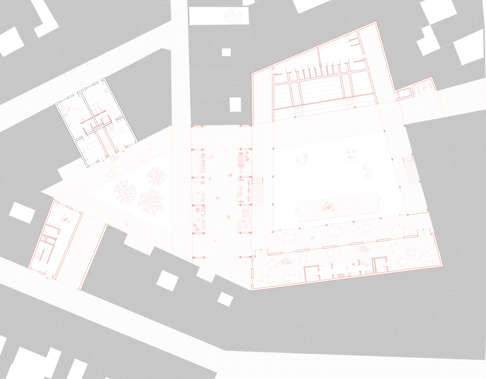
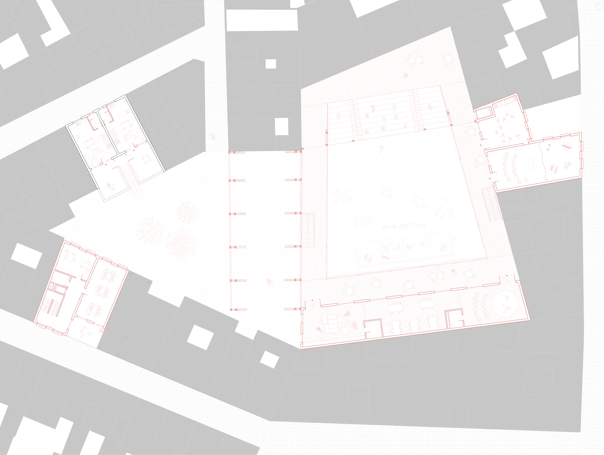
Le projet explore les fractures urbaines de Séville en mettant en lumière la mémoire effacée des quartiers populaires, souvent négligés dans les discours dominants. Il prend pour point de départ la figure du "cortijo", habitat rural traditionnel andalou, qu’il réinterprète comme une structure architecturale capable de recréer du lien social au sein des périphéries marginalisées, notamment dans le quartier de Su Eminencia - La Plata. En s’ancrant dans l’histoire agricole et communautaire de l’Andalousie, le projet propose une architecture contextuelle, collective et attentive aux réalités locales, en résonance avec les inégalités sociales et spatiales contemporaines. À rebours des représentations idéalisées et touristiques du centre historique de Séville, l’intervention vise à renouer avec un patrimoine invisible et une mémoire populaire souvent oubliée. Le *cortijo* devient ici un modèle spatial et symbolique, porteur de dignité, de résistance et d’émancipation pour ces territoires relégués, ouvrant la voie à une nouvelle lecture de la ville fondée sur la justice urbaine et la reconnaissance des identités périphériques.
Image /
Galerie d’images en plein écran
Utilisez les flèches gauche et droite pour naviguer entre les images. Appuyez sur Échap pour fermer la galerie d’images en plein écran.
Image sur : "