Transmettre et fabriquer
Partage des savoir-faire pour un monde soutenable
- PFE
En bref
Auteur
Carla Cucchiaro
Sous la direction de
Lieu
Marseille (Bouches-du-Rhône)
Cursus pédagogiques
Présentation
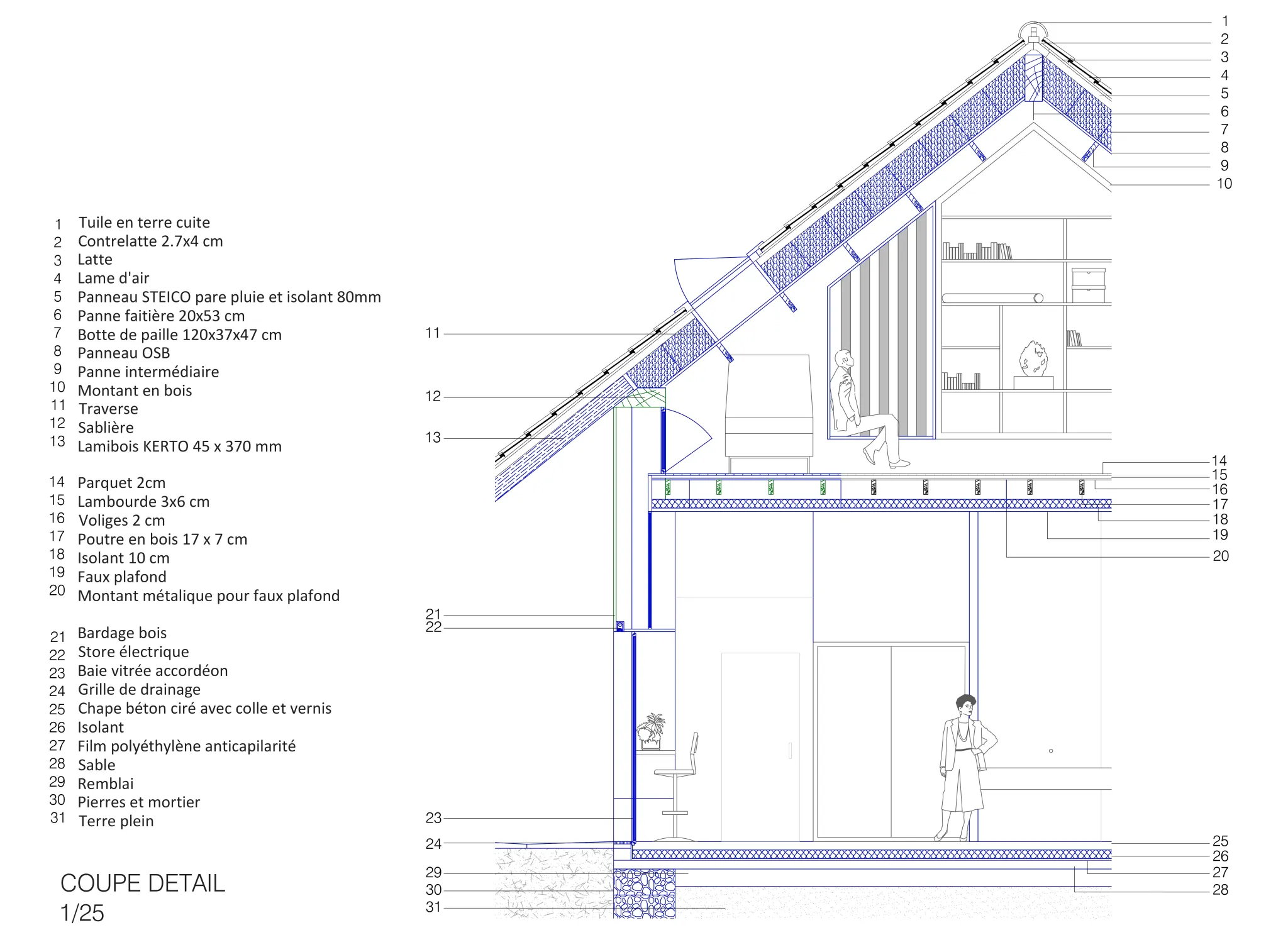
Le Domaine de la Bétheline, situé au nord de Marseille, dans le Vallon des Ouides, est en cours de transformation en ferme régénérative. Ce projet s'inscrit dans la grande chaîne de la transition écologique et économique que connaît actuellement notre planète - à la fois en réponse et en conséquence de ces bouleversements. Pensé comme un carrefour d'échanges, l'objectif est de transmettre les savoir-faire portés par les associations l'Atelier Paysan et le Gabion. Il s'agit de créer des lieux de formation et d'expérimentation dédiés à l'artisanat et à l'autonomie agricole. Pour cela, un atelier bois et métal, accompagné d'une salle de classe, serait construit à partir de matériaux réemployés du site : terre crue, tuiles, solives, pierres calcaires... L'isolation serait réalisée en bottes de paille de blé, insérées dans une ossature centrée. Ce projet n'est pas seulement un lieu d'apprentissage, mais un espace vivant, modulable et évolutif. L'architecture y est pensée pour abolir la frontière entre théorie et pratique, entre nature et bâti. Ce chantier de rénovation s'inscrit pleinement dans cette vision. Il s'agit de laisser le bâti devenir un support d'interactions vivantes, pensé comme un habitat élargi : pour les humains, mais aussi pour les insectes, les oiseaux, les plantes, et les usages à venir.
Image /
Galerie d’images en plein écran
Utilisez les flèches gauche et droite pour naviguer entre les images. Appuyez sur Échap pour fermer la galerie d’images en plein écran.
Image sur : "