Tisser la ville

Recomposition en trois actes

  • PFE

En bref

Auteur

Alexandre Altesi

Sous la direction de

Lieu

Athènes (Grèce)

Cursus pédagogiques

Présentation

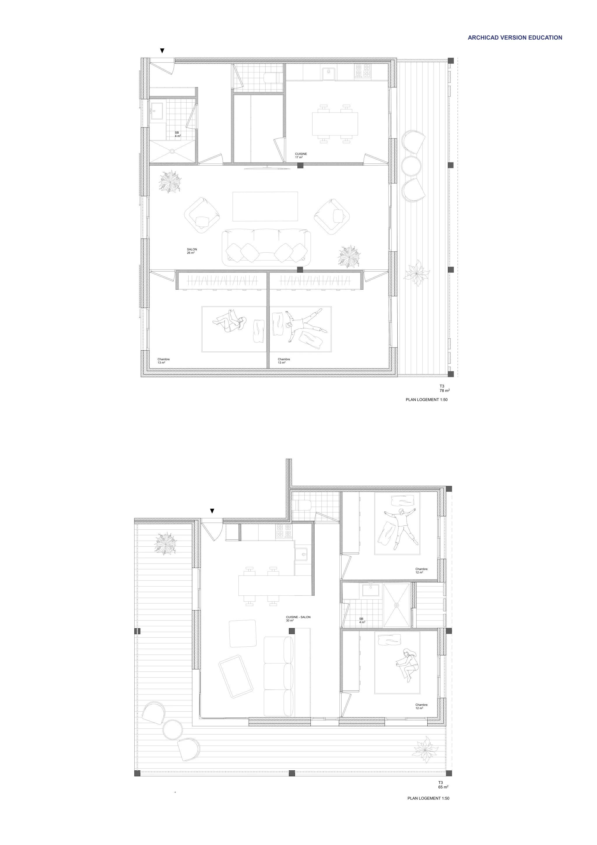
Le projet s’inscrit dans le quartier de Gazi à Athènes, entre héritage industriel et dynamiques contemporaines. En analysant les espaces publics, une intuition fondatrice émerge : reconnecter une placette au sud, le centre culturel Technopolis, et la station de métro Keramikos. Trois îlots structurent cette recomposition : l’îlot A, cœur du projet, transforme un ancien parking enclavé en un îlot habité, traversant et poreux, avec une place centrale et une programmation active en rez-de-chaussée ; l’îlot B, plus fragmenté, crée une cour productive et habitable autour d’ateliers et logements, prolongeant l’espace public via une stoa et une percée vers l’îlot C ; ce dernier valorise des usages spontanés par un bâtiment léger, en L, traversé au rez-de-chaussée. Chaque îlot est pensé dans une logique d’échelle, de porosité et d’usages mixtes, révélant le potentiel du tissu urbain. Le projet dessine ainsi une promenade habitée, où le vide structure le plein, et où l’espace public devient lien, seuil et récit.

Image /

En savoir plus