Le domestique et le monumental
- PFE
En bref
Auteur
Tom Bru
Sous la direction de
Lieu
Grèce
Cursus pédagogiques
Présentation
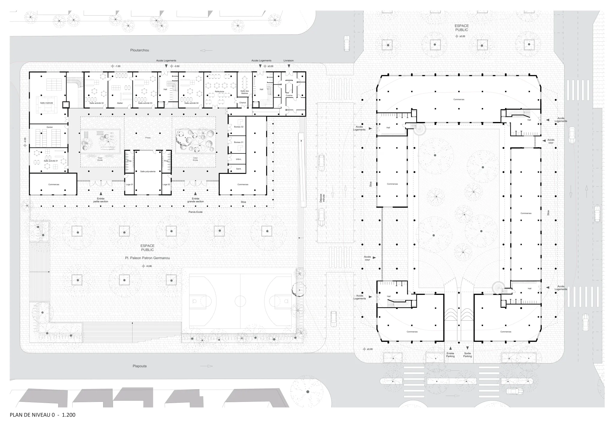
Le projet intitulé « Le domestique et le monumental » se situe dans le quartier d'Ilioupoli, au sud-est d'Athènes. Ce territoire présente une dualité d’échelles, entre grands axes routiers et tissu urbain fragmenté, mêlant typologies denses athéniennes et formes pavillonnaires périphériques. La rupture d’échelle constitue l'enjeu central : comment articuler harmonieusement l’échelle du territoire et l’échelle domestique du quartier ? Ma proposition s’organise autour de deux bâtiments complémentaires : l'un monumental, situé au centre d’un rond-point, symbolise l’achèvement d’un grand axe territorial nord-sud, tandis que l’autre, domestique, répond à l'échelle urbaine local et restructure une friche à l’ouest pour créer une nouvelle place publique. Ce projet constitue avant tout une recherche et une expérimentation autour de la monumentalité de l'échelle domestique. Il explore la manière dont l’architecture peut répondre aux ruptures d’échelle, en testant des hypothèses architecturales et urbaines dans un contexte urbain complexe.
Image /
Galerie d’images en plein écran
Utilisez les flèches gauche et droite pour naviguer entre les images. Appuyez sur Échap pour fermer la galerie d’images en plein écran.
Image sur : "